Agentic AI for construction workflows is launching soon. Join early access →
Agentic AI for construction workflows is launching soon. Join early access →
Book a Meeting
Start Free Trial

Catch Every Note Before It Becomes a Scope Gap

AI-powered scope gap analysis that catches every missed item long before it becomes a change order.

Request Sample Report

From Complex Drawings to Clear Scope

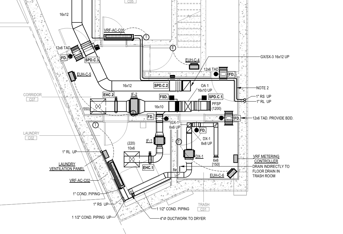
Mechanical Drawing

Mechanical Drawing

Click to extract and organize all notes

AI-Powered Note Extraction

Click the drawing to see AI extract and organize all notes into a structured scope file

mech.xlsx
Ready AI Processed: 0 notes

AI automatically extracts notes and organizes them into a trade-ready scope file

iFieldSmart AI captures every note across all drawings and organizes them into a clean, trade-ready scope file that eliminates scope gaps. From mechanical drawings to electrical plans, no detail is missed.

What iFieldSmart Delivers

Our Scope Gap Analysis combines AI + expert construction review to catch what others miss.

We limit your exposure to scope gaps by automatically scanning your drawings and creating a reasonable Exhibit B for you.

  • Catch hidden notes across all drawing sets
  • Identify conflicts where one sheet says A and another says B
  • Auto-generate a complete trade-by-trade scope sheet

How it Works

General Contractors
Upload Your Drawings

Drop your PDF sets into iFieldSmart AI.


Subcontractors
AI Scope Extraction

Our system scans every page and pulls all notes—even the ones buried in callouts and details.

Owners
Trade Mapping & Output

AI automatically assigns each note to the right trade and delivers a downloadable Excel file with clear scope details.

ROI That
Speaks for Itself

icon
Save 70% PM Time

during buyout and bid levelling

icon
Catch 50% of Scope Gaps

before award

icon
Cut costly change orders

and reduce schedule disruptions

icon
Build trust with trades & owners

through early clarity

icon
Save 70% PM Time

during buyout and bid levelling

icon
Catch 50% of Scope Gaps

before award

icon
Cut costly change orders

and reduce schedule disruptions

icon
Build trust with trades & owners

through early clarity

Early Access (Beta)

We just launched the beta. Try it now and see how much scope risk you can eliminate before award.

Schedule a Free Demo